Автоматический угольный котел 250 КВт предназначен для отопления коттеджей, загородных домов, складских, ремонтных баз, офисных зданий, производственных помещений, СТО, теплиц и животноводческих комплексов площадью 1500 до 2600 м2. Данная модель позволяет обеспечивать вас теплом и горячей водой, без необходимости постоянного присутствия кочегара в котельной.
Уникальная система подачи топлива и горелки позволяют работать на каменном и буром угле фракцией до 100 мм.
Особенностью угольного котла с автоматической подачей топлива нашего производства является работа на каменных и бурых углях фракцией топлива от 0 до 100 мм. На сегодняшний день это уникальное предложение на рынке отечественных автоматических отопительных котлов. Низкая требовательность к фракции топлива, позволит вам не переплачивать, за сортовой уголь и не беспокоится о его наличии в вашем регионе или населенном пункте. Вам не понадобится дополнительно приобретать угольную дробилку и самостоятельно заниматься подготовкой топлива для сжигания. Для предотвращения зависания топлива в бункере предусмотрен штатный ворошитель.
Автоматический котел 250 КВт работает без дымососа, дымовой трубы достаточно 6 метров. В случае установки котла в пристроенной котельной, высота трубы должна быть выше кровли прилегаемого здания.
Работа вентилятора поддува регулируется частотным приводом, что экономит потребление электроэнергии.
Развитая поверхность нагрева обеспечивает максимальный теплосъем и высокий КПД. При разработке нашего оборудования мы применяем наиболее эффективную конструкцию теплообменников – водотрубную. Теплоноситель двигается по панелям топочной камеры с высокой скоростью, делая многократные повороты по всему периметру трубных панелей. В верхней части котельного блока вода поступает в трубы, расположенные в шахматном порядке. Шахматное расположение позволяет максимально омывать поверхности нагрева и отдавать тепло теплоносителю. Высокая скорость воды в трубах сдерживает процессы отложения накипи в поверхностях нагрева и исключает их перегрев.
Конструкция теплообменников рассчитана на давление 3 кгс/см2 – это позволит вам не беспокоится о возможных течах в котле, вызванных гидроударами в системе.
Удобная и функциональная панель управления, позволяет с легкостью настраивать режимы работы автоматического котла, в зависимости о топлива, погодных условий и требований температурного режима в ваших помещениях.
При кратковременном перебое с электричеством котел автомат 250 кВт продолжает работать в том же режиме, что и до перебоя.
Управление рециркуляционным насосом обеспечивает отсутствие конденсата на поверхностях нагрева при низкой нагрузке.
Имеется автономная система пожаротушения, обеспечивающая безопасность даже при перебоях в системах электроснабжения.
В системе управлении шнековой подачи автоматического котла предусмотрена защита от заклинивания шнека при попадании породы и иных твердых включений.
Котлы с автоматической подачей угля мощностью 250 кВт г Астрахань в эксплуатации максимально просты и удобны. Геометрия бункера исключает зависание топлива. Бункер вмещает в себя не менее 400 кг топлива. В зависимости от температуры наружного воздуха, температурного режима в помещении и выбранных режимов работы на панели оператора, этого количества хватает до 7 дней «на минимальной нагрузке», в начале и окончании отопительного сезона. Дополнительную экономию топлива вы можете получить, тонко регулируя нагрузку в зависимости от времени суток и недели. Особенно это актуально для производственных, промышленных и офисных помещений, где можно снижать температуру в ночное время, и в выходные и праздничные дни.
Прежде чем купить автоматический котел на угле, на заводе в Астрахани необходимо уточнить расположение бункера - правое или левое, в последствие самостоятельно переустановить его невозможно.
Встроенный шнек автоматически удаляет образующуюся золу и шлак из котла в емкость - накопитель. Вам не понадобится останавливать и очищать котел от золы и шлака. Достаточно периодически очищать емкость для шлака, находящуюся рядом с котлом.
Стандартная комплектация автоматического котла 250 кВт производства Котельный завод РЭП:
Дополнительные опции GSM модуль.
GSM модуль - позволяет контролировать состояние котла и отопительной системы, оповещает о нештатных ситуациях при работе котла. Повышает надежность работы котельной, так как сразу информирует Вас о любых сбоях в работе.
Цена автоматического угольного котла 250 кВт включает в себя котельный блок, шнековую подачу топлива, ретортную горелку, бункер, запорную арматуру и КИП в пределах котла, вентилятор поддува и предохранительные клапаны. Ниже приведена подробная информация.
Для эффективной и надежной работы автоматического угольного котла 250 кВт в вашей котельной вам потребуется дополнительное оборудование - автоматика ЩУК, дымосос, насос сетевой и подпиточный, золоуловитель (по желанию), газоходы и переходники для газового тракта, дымовая труба. Мы предлагаем рассмотреть типовые варианты комплектации.
В случае если у вас на объекте уже имеется насосное и тягодутьевое оборудование, мы можем проверить совместимость автоматического угольного котла 250 кВт нашего производства и вашего оборудования.
Можем изготовить нестандартные узлы для выполнения быстрого монтажа котла - газоходы и узлы обвязки.
Типовую схему монтажа котла вы можете посмотреть во вкладке схемы подключения и монтаж.
Полностью автоматическое регулирование работы котла:
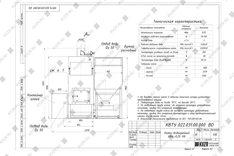
Водогрейный твердотопливный стальной отопительный автоматический угольный котел 250 кВт, предназначен для получения горячей воды номинальной температурой на выходе из котла от 95 до 115 °С рабочим давлением до 0,6 (6,0) МПа (кгс/см), используемой в системах централизованного теплоснабжения на нужды отопления, горячего водоснабжения. Устанавливается в производственных, промышленных и отопительных котельных.
Монтаж водогрейного автоматического угольного котла 250 кВт и вспомогательного оборудования в котельной должно производиться в соответствии с проектом и учетом требований СП 89.13330. 2016 «Котельные установки. Актуализированная редакция СНиП II-35-76» и «Правил устройства и безопасной эксплуатации паровых котлов с давлением пара не более 0,07 МПа (0,7 кгс/см2), водогрейных котлов и водоподогревателей с температурой нагрева воды не выше 388 К (115 С). Правильный монтаж котла – залог его надежной и долгой работы.
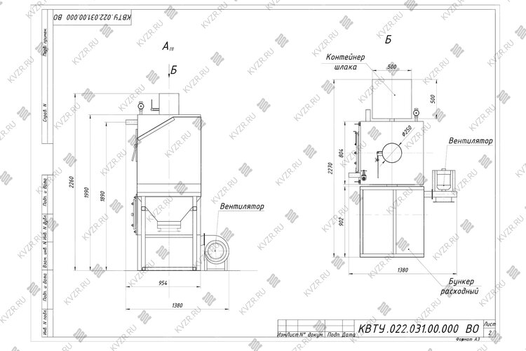
Чтобы правильно подключить автоматический угольный котел 250 кВт в котельной необходимо оставить проемы для обслуживания оборудования во время эксплуатации. На представленной здесь схеме указаны их минимальные размеры. Кроме того, в данной примерной схеме монтажа водогрейных котлов и оборудования указан перечень минимально необходимого вспомогательного оборудования для правильной работы котла.
К вспомогательному оборудованию при подключении промышленного водогрейного твердотопливного котла относят - щит управления котлом, насос циркуляционный, насос подпиточной воды, бак запаса воды, расширительный мембранный бак, дымовую трубу, систему газоходов и дымосос, золоуловитель (по желанию).
В случае если подпиточная вода не соответствует по своим характеристикам требованиям к питательной воде, необходимо предусмотреть систему водоподготовки котловой воды.
Для котельных 1 категории, являющиеся единственным источником тепла системы теплоснабжения и обеспечивающие потребителей первой категории, не имеющих индивидуальных резервных источников тепла, необходимо предусмотреть полное резервирование оборудования – подключение 2 (двух) котлов, насосов, ТДМ. Пунктиром обозначено оборудование для резервирования.
Для котельных 2 категории, включающие в себя промышленные и производственные котельные резервирование нужно предусматривать по необходимости.
Образец тепловой схемы подключения оборудования в котельной приведен на данной схеме. При эксплуатации очень важно грамотно осуществить подключение оборудования, установить все контрольно измерительные приборы, для контроля параметров работы котельной и запорную арматуру для оперативного переключения потока теплоносителя при плановой или аварийной остановке оборудования. Данную схему можно использовать как пример для разработки под свой объект или заказать у нас разработку индивидуальной схемы для вашей котельной.
Водогрейные котлы производства Котельный завод "РЭП" соответствуют строгим стандартам качества и безопасности. Завод производит котлы в соответствии с требованиями ГОСТ 30735-3001 по Техническим Условиям завода.
Котлы имеют сертификаты соответствия Техническим регламентам Таможенного союза:

Отзыв о работе котла КВр производства Котельный завод "РЭП", проработавшего на АО "Водоканал" г. Белокуриха 10 лет. Интервью предоставил заместитель главного директора по производству Суходоев Сергей Николаевич.

Интервью с главным энергетиком базового комплекса "Сводор" г. Барнаул о работе водогрейного котла нашего производства, отапливающего предприятие с 2008 года.
Котельный завод производит автоматический угольный котел для отопления мощностью 250 кВт для производства, сушильных камер, теплиц и промышленных твердотопливных водогрейных котельных.
Подобрать мощность котла по площади важно учитывая не только площадь и объем здания, но и тип зданий и климатические данные региона.
На нашем сайте калькулятор расчета мощности котла учитывает тепло, требуемое на возмещение тепловых потерь через строительные конструкции и потери, вызываемые инфильтрацией (проникновением) наружного воздуха, через их неплотности и периодически открываемые двери.
Наружный строительный объем здания должен определяться умножением площади горизонтального сечения, взятого по внешнему обводу здания на уровне первого этажа на полную высоту здания, измеренную для панельных зданий: от уровня чистого пола (нулевой отметки) до верхней плоскости теплоизоляционного слоя чердачного покрытия, для остальных строений от уровня земли.
Расчетная температура воздуха в отапливаемых зданий принимается в зависимости от типа и назначения здания:
В случае если требуется отопление различных по типу зданий, теплопотребление каждого считается отдельно, полученные значения складываются и подобрать мощность котла нужно в соответствии с общей суммарной мощностью каждого отдельно стоящего задания.
Климатические условия вашего региона принимаются в соответствии с СП 131.13330 Строительная климатология. Данные по всем регионам России занесены в наш калькулятор расчета мощности котла.
Подобрать мощность котла по площади с учетом потребностей объекта в тепле на вентиляцию и горячую воду возможно только с более детальным расчетом. Его вы можете заказать в отделе сбыта котельного завода отправив заявку на электронный адрес sb@kvzr.ru или позвонив по телефонам (38-52) 29-97-41, 29-97-42.